Новосибирск, Центральный округ, Железнодорожный, Нахаловка м-н
Площадь
Жилая
Кухня
Отделка
Класс жилья
Комнат
Номер кв.
Этаж
Доступна к покупке 3-комнатная квартира в современном жилом комплексе "ЖК Страна.Береговая" 🏢
Квартира расположена на 10-м этаже 29-этажного дома.
Прекрасный выбор для комфортной жизни.
Удобная планировка: 📐
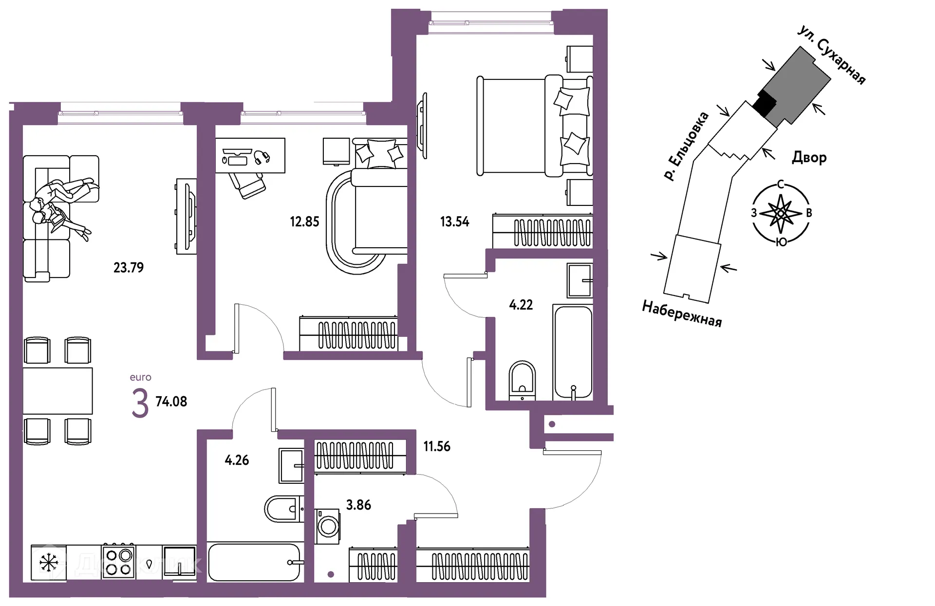
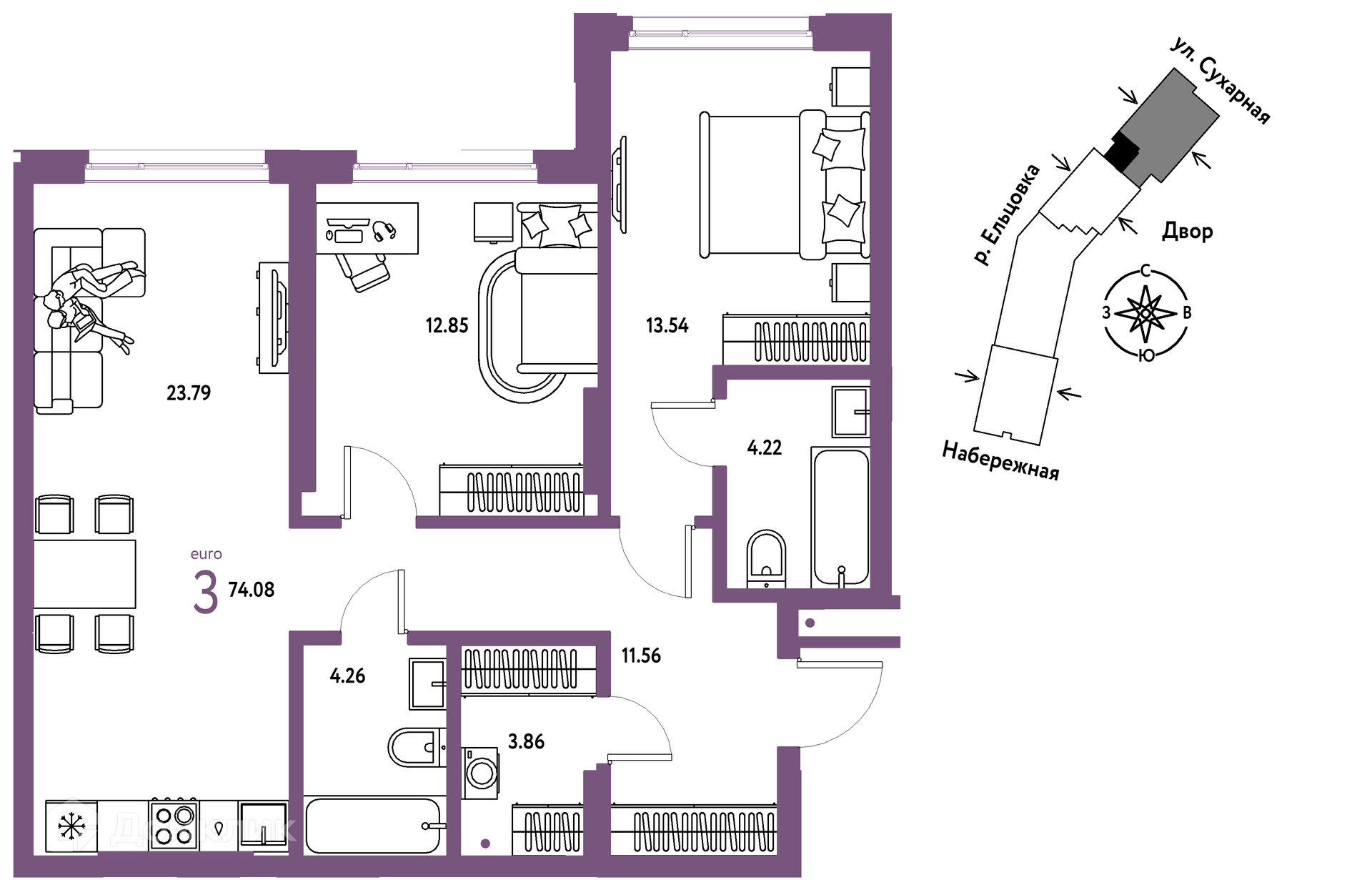
✅ Общая площадь: 74.08 м².
✅ Уютная жилая площадь: 42.39 м².
✅ Кухня: 7.79 м² — место для кулинарных шедевров.
Особенности квартиры: ✨
🔧 Вариант отделки: предварительная отделка. Готовая база для вашего интерьера.
🌞 Большие окна наполняют помещения естественным светом.
🌿 Класс жилья: Комфорт — современные технологии.
Выгодные условия покупки: 💰
💳 Ипотека от 105 558 руб/мес.
🏦 Подходит под семейную и IT ипотеку.
🤝 Покупка напрямую от застройщика гарантирует спокойствие.
Для бесплатного бронирования и проверить актуальную стоимость — свяжитесь с нами прямо сейчас! 📞
Параметры новостройки в ЖК Страна.Береговая:
• Номер квартиры - 336
• Вариант отделки - предварительная отделка
• Площадь - 74.08 м²
• Жилая Жилая - 42.39 м²
• Площадь кухни - 7.79 м²
• Класс жилья - Комфорт
• Комнат - 3-комнатная квартира
• Этаж - 10
• Дом - 29-этажный
Полезная информация о ЖК Страна.Береговая
«Страна.Береговая» — новый флагманский проект от Страны Девелопмент в Новосибирске. Новый дом на берегу Оби с выходом на набережную В проекте идеально воссоздана атмосфера безмятежности и спокойствия — три секции разной этажности с акцентной башней-доминантой образуют камерное пространство с закрытым двором и личным зелёным садом для отдыха. Внутри квартала расположена торговая галерея и игровые зоны для детей всех возрастов. А вид на реку позволит жителям круглогодично чувствовать себя в отпуске.
Страна.Береговая создана для удобной и безопасной жизни, а дома оснащены умными технологиями.
Одной из значимых особенностей проекта станет выход на благоустроенную набережную и смотровую площадку.
Срок сдачи: 4 кв. 2026 г.
Срок сдачи: 4 кв. 2026 г.
Площади квартир
Этажность
Класс жилья
Корпусов
Стены