Новосибирск, Большая, 582 стр
Площадь
Жилая
Кухня
Отделка
Класс жилья
Комнат
Номер кв.
Этаж
Доступна к покупке 2-комнатная квартира в современном жилом комплексе "ЖК САМОЦВЕТЫ" 🏢
Квартира расположена на 3-м этаже 18-этажного дома.
Отличный вариант для семьи.
Продуманная планировка: 📐
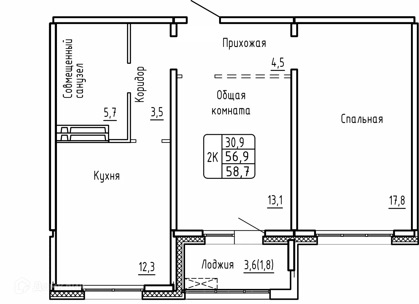
✅ Общая площадь: 58.7 м².
✅ Светлая жилая площадь: 30.9 м².
✅ Кухня: - м² — эргономичное пространство.
Особенности квартиры: ✨
🔧 Вариант отделки: чистовая отделка. Это позволит вам сразу приступить к ремонту.
🌞 Панорамное остекление наполняют помещения природным светом.
🌿 Класс жилья: Комфорт — благоустроенная территория.
Финансы и ипотека: 💰
💳 Ипотека от 45 366 руб/мес.
🏦 Доступны льготные программы господдержки.
🤝 Эскроу-счета гарантирует надежность.
Чтобы забронировать эту квартиру бесплатно и зафиксировать цену — позвоните нам прямо сейчас! 📞
Параметры новостройки в ЖК САМОЦВЕТЫ:
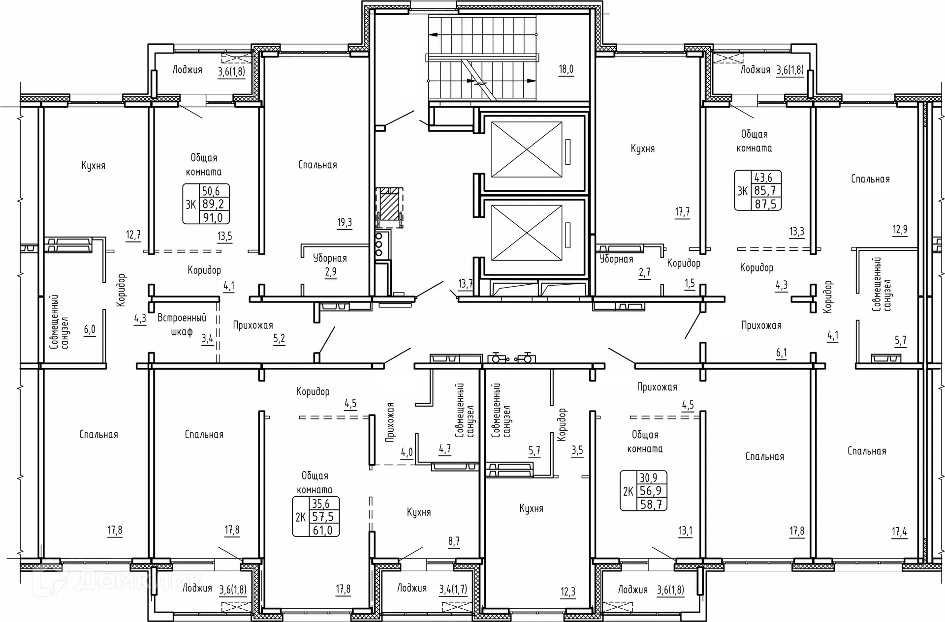
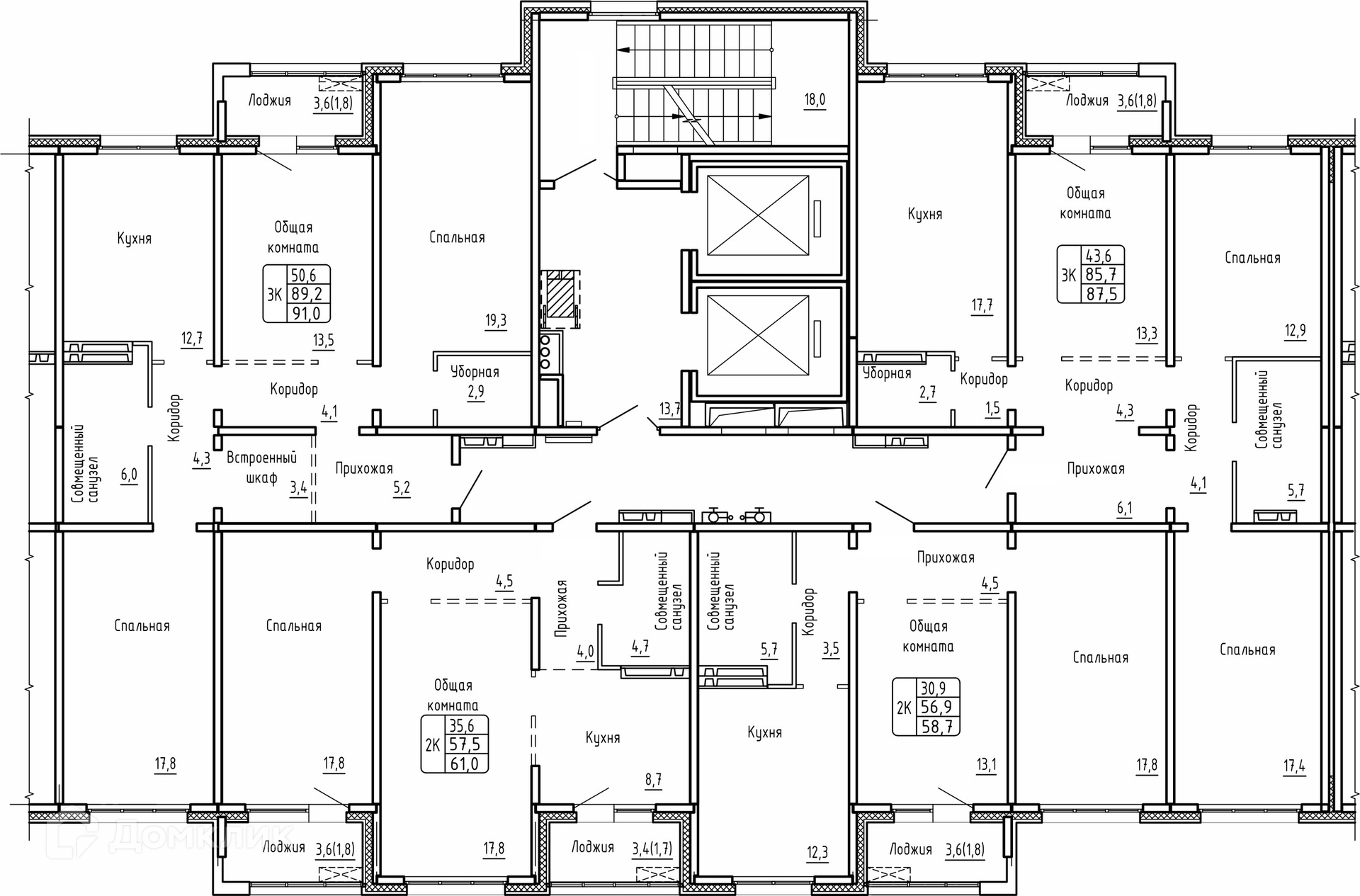
• Номер квартиры - 12
• Вариант отделки - чистовая отделка
• Площадь - 58.7 м²
• Жилая Жилая - 30.9 м²
• Площадь кухни - - м²
• Класс жилья - Комфорт
• Комнат - 2-комнатная квартира
• Этаж - 3
• Дом - 18-этажный
Полезная информация о ЖК САМОЦВЕТЫ
Жилой комплекс «Самоцветы» - это объединенная территория закрытых дворов на 11,2 Га. В проект входят 17 жилых домов, школа, детский сад, стоянки открытого типа и многоуровневый гаражный бокс.
Жилой комплекс «Самоцветы» — это уникальный подход планирования дворовой территории и концептуально - новое пространство. В ЖК «Самоцветы» запроектированы коммерческие помещения: под кафе, рестораны, супермаркеты, магазины и медицинские центры. Каждая очередь строительства ЖК «Самоцветы» имеет свое уникальное название в честь горных пород России.
Жилой комплекс «Самоцветы» расположен по улице «Большая», Ленинского района, города Новосибирска. Вблизи жилого комплекса расположены кафе, продуктовые и строительные магазины, аптеки, а также торговый центр в котором находятся – крупный продуктовый магазин, салоны красоты, сервисные центры и др. А в радиусе 2х км расположились тренажерные залы и большое обилие магазинов способных закрыть любые потребности.
Срок сдачи: 2 кв. 2026 г.
Срок сдачи: 2 кв. 2026 г.
Площади квартир
Этажность
Класс жилья
Корпусов
Стены