Новосибирск, Юбилейный, Столетова, 17
Площадь
Жилая
Кухня
Отделка
Класс жилья
Комнат
Номер кв.
Этаж
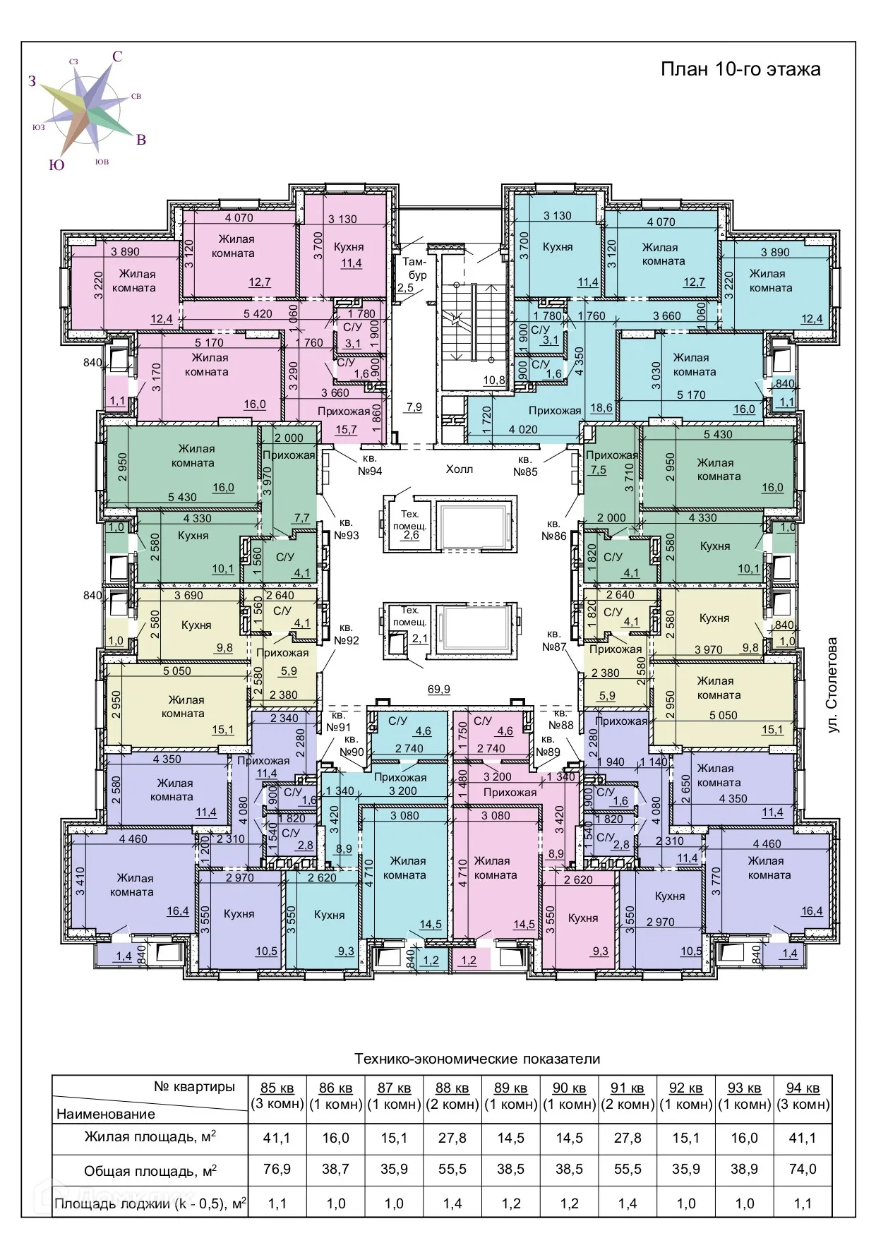
Доступна к покупке 2-комнатная квартира в востребованном жилом комплексе "ЖК "Столетоff (Столетов)"" 🏢
Квартира расположена на 10-м этаже 18-этажного дома.
Прекрасный выбор для комфортной жизни.
Продуманная планировка: 📐
✅ Общая площадь: 55.5 м².
✅ Просторная жилая площадь: - м².
✅ Кухня: - м² — эргономичное пространство.
Особенности квартиры: ✨
🔧 Вариант отделки: без ремонта. Минимум грязных работ.
🌞 Увеличенные оконные проемы наполняют помещения природным светом.
🌿 Класс жилья: Эконом — благоустроенная территория.
Финансы и ипотека: 💰
💳 Ипотека от 44 761 руб/мес.
🏦 Доступны льготные программы господдержки.
🤝 Покупка напрямую от застройщика гарантирует надежность.
Чтобы узнать подробности и проверить актуальную стоимость — позвоните нам прямо сейчас! 📞
Параметры новостройки в ЖК "Столетоff (Столетов)":
• Номер квартиры - 88
• Вариант отделки - без ремонта
• Площадь - 55.5 м²
• Жилая Жилая - - м²
• Площадь кухни - - м²
• Класс жилья - Эконом
• Комнат - 2-комнатная квартира
• Этаж - 10
• Дом - 18-этажный
Полезная информация о ЖК "Столетоff (Столетов)"
Срок сдачи: 2 кв. 2023 г.
Срок сдачи: 2 кв. 2023 г.
Площади квартир
Тип жилья
Этажность
Класс жилья
Корпусов
Стены