Новосибирск, Юбилейный, Столетова, 17
Площадь
Жилая
Кухня
Отделка
Класс жилья
Комнат
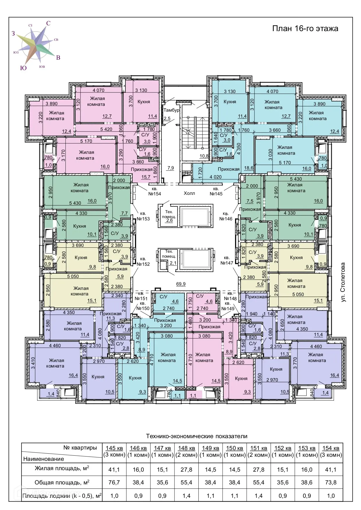
Номер кв.
Этаж
Доступна к покупке 2-комнатная квартира в новом жилом комплексе "ЖК "Столетоff (Столетов)"" 🏢
Квартира расположена на 16-м этаже 18-этажного дома.
Отличный вариант для инвестиций.
Продуманная планировка: 📐
✅ Общая площадь: 55.4 м².
✅ Просторная жилая площадь: - м².
✅ Кухня: - м² — место для кулинарных шедевров.
Преимущества квартиры: ✨
🔧 Вариант отделки: без ремонта. Готовая база для вашего интерьера.
🌞 Большие окна наполняют помещения природным светом.
🌿 Класс жилья: Эконом — благоустроенная территория.
Финансы и ипотека: 💰
💳 Ипотека от 45 079 руб/мес.
🏦 Доступны льготные программы господдержки.
🤝 Безопасная сделка гарантирует надежность.
Для бесплатного бронирования и зафиксировать цену — свяжитесь с нами прямо сейчас! 📞
Параметры новостройки в ЖК "Столетоff (Столетов)":
• Номер квартиры - 148
• Вариант отделки - без ремонта
• Площадь - 55.4 м²
• Жилая Жилая - - м²
• Площадь кухни - - м²
• Класс жилья - Эконом
• Комнат - 2-комнатная квартира
• Этаж - 16
• Дом - 18-этажный
Полезная информация о ЖК "Столетоff (Столетов)"
Срок сдачи: 2 кв. 2023 г.
Срок сдачи: 2 кв. 2023 г.
Площади квартир
Тип жилья
Этажность
Класс жилья
Корпусов
Стены