Новосибирск, Центральный округ, Железнодорожный, Нахаловка м-н
Площадь
Жилая
Кухня
Отделка
Класс жилья
Комнат
Номер кв.
Этаж
В продаже 2-комнатная квартира в новом жилом комплексе "ЖК Страна.Береговая" 🏢
Квартира расположена на 2-м этаже 29-этажного дома.
Отличный вариант для инвестиций.
Продуманная планировка: 📐
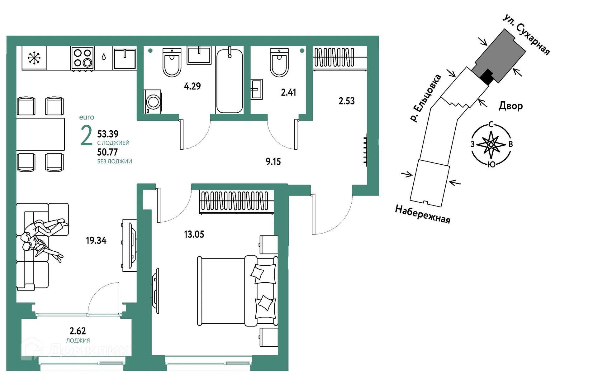
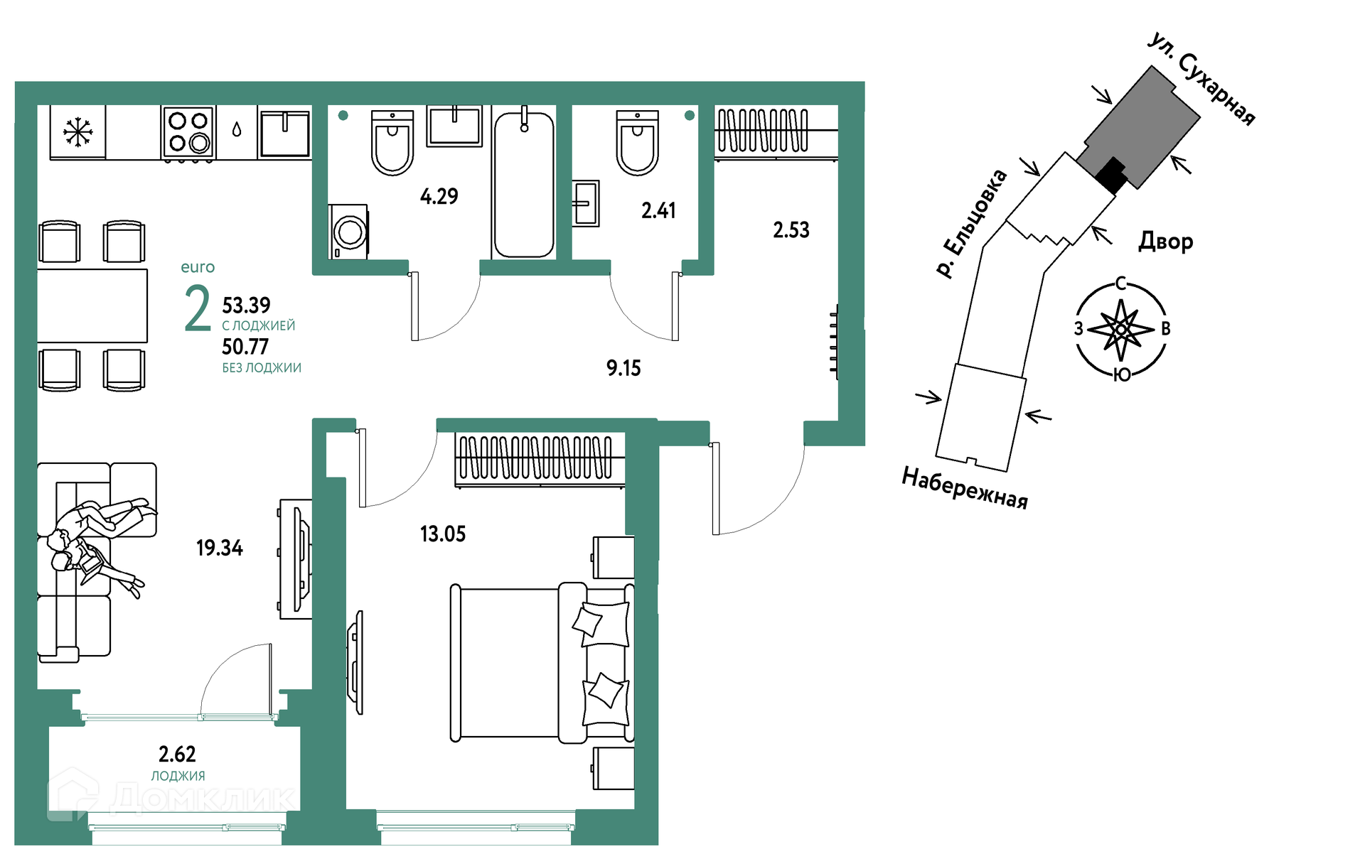
✅ Общая площадь: 53.39 м².
✅ Уютная жилая площадь: 26.86 м².
✅ Кухня: 5.53 м² — эргономичное пространство.
Преимущества квартиры: ✨
🔧 Вариант отделки: предварительная отделка. Это позволит вам сразу приступить к ремонту.
🌞 Большие окна наполняют помещения естественным светом.
🌿 Класс жилья: Комфорт — современные технологии.
Выгодные условия покупки: 💰
💳 Ипотека от 78 363 руб/мес.
🏦 Подходит под семейную и IT ипотеку.
🤝 Покупка напрямую от застройщика гарантирует спокойствие.
Чтобы забронировать эту квартиру бесплатно и зафиксировать цену — свяжитесь с нами прямо сейчас! 📞
Параметры новостройки в ЖК Страна.Береговая:
• Номер квартиры - 258
• Вариант отделки - предварительная отделка
• Площадь - 53.39 м²
• Жилая Жилая - 26.86 м²
• Площадь кухни - 5.53 м²
• Класс жилья - Комфорт
• Комнат - 2-комнатная квартира
• Этаж - 2
• Дом - 29-этажный
Полезная информация о ЖК Страна.Береговая
«Страна.Береговая» — новый флагманский проект от Страны Девелопмент в Новосибирске. Новый дом на берегу Оби с выходом на набережную В проекте идеально воссоздана атмосфера безмятежности и спокойствия — три секции разной этажности с акцентной башней-доминантой образуют камерное пространство с закрытым двором и личным зелёным садом для отдыха. Внутри квартала расположена торговая галерея и игровые зоны для детей всех возрастов. А вид на реку позволит жителям круглогодично чувствовать себя в отпуске.
Страна.Береговая создана для удобной и безопасной жизни, а дома оснащены умными технологиями.
Одной из значимых особенностей проекта станет выход на благоустроенную набережную и смотровую площадку.
Срок сдачи: 4 кв. 2026 г.
Срок сдачи: 4 кв. 2026 г.
Площади квартир
Этажность
Класс жилья
Корпусов
Стены