Новосибирск, Западный м-н, Планируемая застройка
Площадь
Жилая
Кухня
Отделка
Класс жилья
Комнат
Номер кв.
Этаж
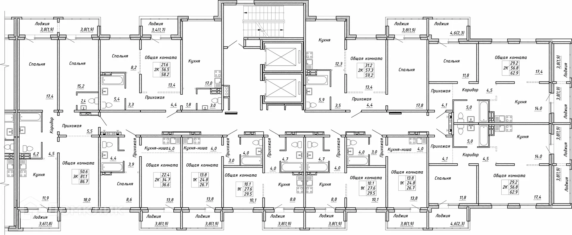
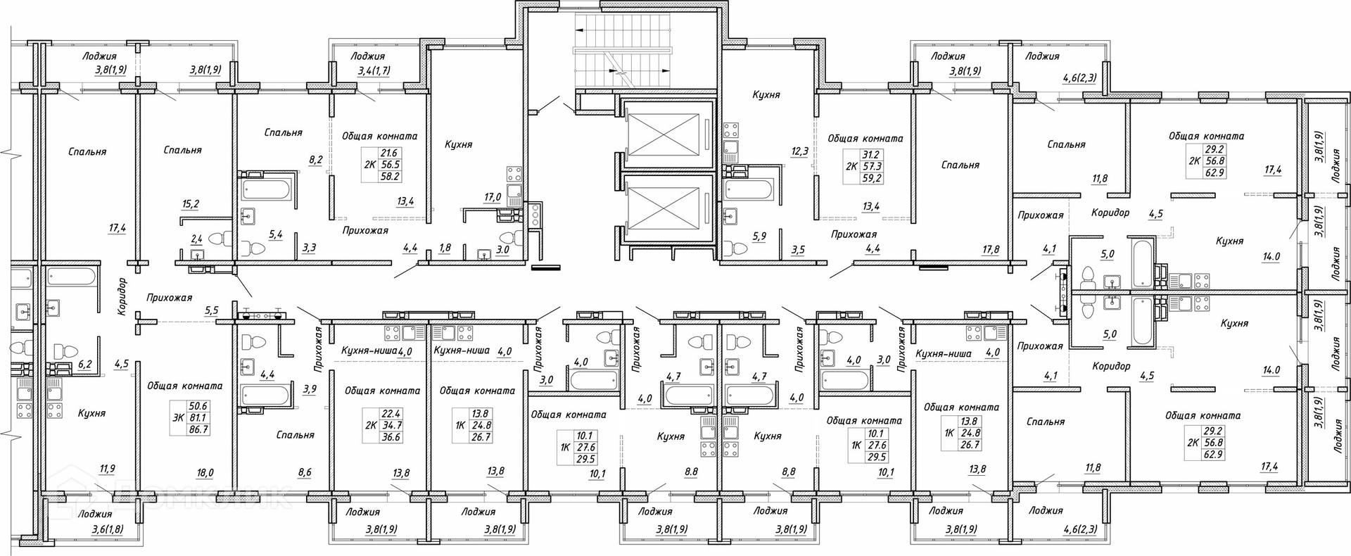
Доступна к покупке 2-комнатная квартира в востребованном жилом комплексе "ЖК по ул. Связистов" 🏢
Квартира расположена на 8-м этаже 17-этажного дома.
Отличный вариант для семьи.
Продуманная планировка: 📐
✅ Общая площадь: 58.2 м².
✅ Просторная жилая площадь: - м².
✅ Кухня: - м² — эргономичное пространство.
Преимущества квартиры: ✨
🔧 Вариант отделки: без ремонта. Минимум грязных работ.
🌞 Большие окна наполняют помещения естественным светом.
🌿 Класс жилья: Комфорт — высокое качество строительства.
Финансы и ипотека: 💰
💳 Ипотека от 48 966 руб/мес.
🏦 Подходит под семейную и IT ипотеку.
🤝 Безопасная сделка гарантирует спокойствие.
Чтобы забронировать эту квартиру бесплатно и зафиксировать цену — свяжитесь с нами прямо сейчас! 📞
Параметры новостройки в ЖК по ул. Связистов:
• Номер квартиры - 248
• Вариант отделки - без ремонта
• Площадь - 58.2 м²
• Жилая Жилая - - м²
• Площадь кухни - - м²
• Класс жилья - Комфорт
• Комнат - 2-комнатная квартира
• Этаж - 8
• Дом - 17-этажный
Полезная информация о ЖК по ул. Связистов
Срок сдачи: 3 кв. 2025 г.
Срок сдачи: 3 кв. 2025 г.
Площади квартир
Этажность
Класс жилья
Корпусов
Стены