Новосибирск, Центральный округ, Железнодорожный, Нахаловка м-н
Площадь
Жилая
Кухня
Отделка
Класс жилья
Комнат
Номер кв.
Этаж
В продаже 2-комнатная квартира в новом жилом комплексе "ЖК Страна.Береговая" 🏢
Квартира расположена на 13-м этаже 29-этажного дома.
Прекрасный выбор для инвестиций.
Удобная планировка: 📐
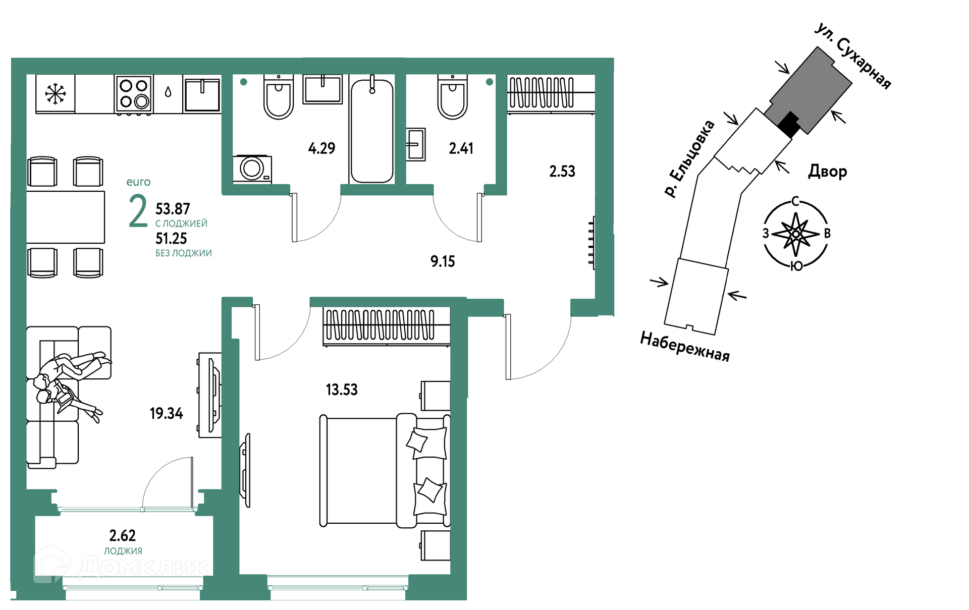
✅ Общая площадь: 53.87 м².
✅ Уютная жилая площадь: 27.34 м².
✅ Кухня: 5.53 м² — идеальна для семейных ужинов.
Преимущества квартиры: ✨
🔧 Вариант отделки: предварительная отделка. Готовая база для вашего интерьера.
🌞 Панорамное остекление наполняют помещения природным светом.
🌿 Класс жилья: Комфорт — высокое качество строительства.
Выгодные условия покупки: 💰
💳 Ипотека от 82 853 руб/мес.
🏦 Подходит под семейную и IT ипотеку.
🤝 Покупка напрямую от застройщика гарантирует надежность.
Чтобы узнать подробности и проверить актуальную стоимость — позвоните нам прямо сейчас! 📞
Параметры новостройки в ЖК Страна.Береговая:
• Номер квартиры - 379
• Вариант отделки - предварительная отделка
• Площадь - 53.87 м²
• Жилая Жилая - 27.34 м²
• Площадь кухни - 5.53 м²
• Класс жилья - Комфорт
• Комнат - 2-комнатная квартира
• Этаж - 13
• Дом - 29-этажный
Полезная информация о ЖК Страна.Береговая
«Страна.Береговая» — новый флагманский проект от Страны Девелопмент в Новосибирске. Новый дом на берегу Оби с выходом на набережную В проекте идеально воссоздана атмосфера безмятежности и спокойствия — три секции разной этажности с акцентной башней-доминантой образуют камерное пространство с закрытым двором и личным зелёным садом для отдыха. Внутри квартала расположена торговая галерея и игровые зоны для детей всех возрастов. А вид на реку позволит жителям круглогодично чувствовать себя в отпуске.
Страна.Береговая создана для удобной и безопасной жизни, а дома оснащены умными технологиями.
Одной из значимых особенностей проекта станет выход на благоустроенную набережную и смотровую площадку.
Срок сдачи: 4 кв. 2026 г.
Срок сдачи: 4 кв. 2026 г.
Площади квартир
Этажность
Класс жилья
Корпусов
Стены