Новосибирск, Центральный округ, Железнодорожный, Нахаловка м-н
Площадь
Жилая
Кухня
Отделка
Класс жилья
Комнат
Номер кв.
Этаж
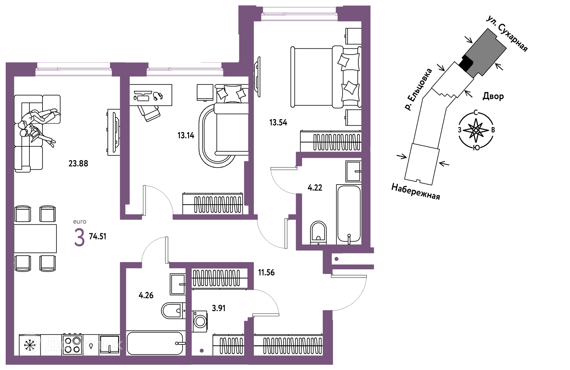
Доступна к покупке 3-комнатная квартира в новом жилом комплексе "ЖК Страна.Береговая" 🏢
Квартира расположена на 18-м этаже 29-этажного дома.
Отличный вариант для инвестиций.
Удобная планировка: 📐
✅ Общая площадь: 74.51 м².
✅ Светлая жилая площадь: 42.68 м².
✅ Кухня: 7.88 м² — идеальна для семейных ужинов.
Преимущества квартиры: ✨
🔧 Вариант отделки: предварительная отделка. Это позволит вам сразу приступить к ремонту.
🌞 Большие окна наполняют помещения естественным светом.
🌿 Класс жилья: Комфорт — высокое качество строительства.
Выгодные условия покупки: 💰
💳 Ипотека от 108 438 руб/мес.
🏦 Подходит под семейную и IT ипотеку.
🤝 Безопасная сделка гарантирует спокойствие.
Чтобы забронировать эту квартиру бесплатно и проверить актуальную стоимость — позвоните нам прямо сейчас! 📞
Параметры новостройки в ЖК Страна.Береговая:
• Номер квартиры - 424
• Вариант отделки - предварительная отделка
• Площадь - 74.51 м²
• Жилая Жилая - 42.68 м²
• Площадь кухни - 7.88 м²
• Класс жилья - Комфорт
• Комнат - 3-комнатная квартира
• Этаж - 18
• Дом - 29-этажный
Полезная информация о ЖК Страна.Береговая
«Страна.Береговая» — новый флагманский проект от Страны Девелопмент в Новосибирске. Новый дом на берегу Оби с выходом на набережную В проекте идеально воссоздана атмосфера безмятежности и спокойствия — три секции разной этажности с акцентной башней-доминантой образуют камерное пространство с закрытым двором и личным зелёным садом для отдыха. Внутри квартала расположена торговая галерея и игровые зоны для детей всех возрастов. А вид на реку позволит жителям круглогодично чувствовать себя в отпуске.
Страна.Береговая создана для удобной и безопасной жизни, а дома оснащены умными технологиями.
Одной из значимых особенностей проекта станет выход на благоустроенную набережную и смотровую площадку.
Срок сдачи: 4 кв. 2026 г.
Срок сдачи: 4 кв. 2026 г.
Площади квартир
Этажность
Класс жилья
Корпусов
Стены