Новосибирск, Центральный округ, Железнодорожный, Нахаловка м-н
Площадь
Жилая
Кухня
Отделка
Класс жилья
Номер кв.
Этаж
В продаже Студия в востребованном жилом комплексе "ЖК Страна.Береговая" 🏢
Квартира расположена на 2-м этаже 29-этажного дома.
Отличный вариант для комфортной жизни.
Удобная планировка: 📐
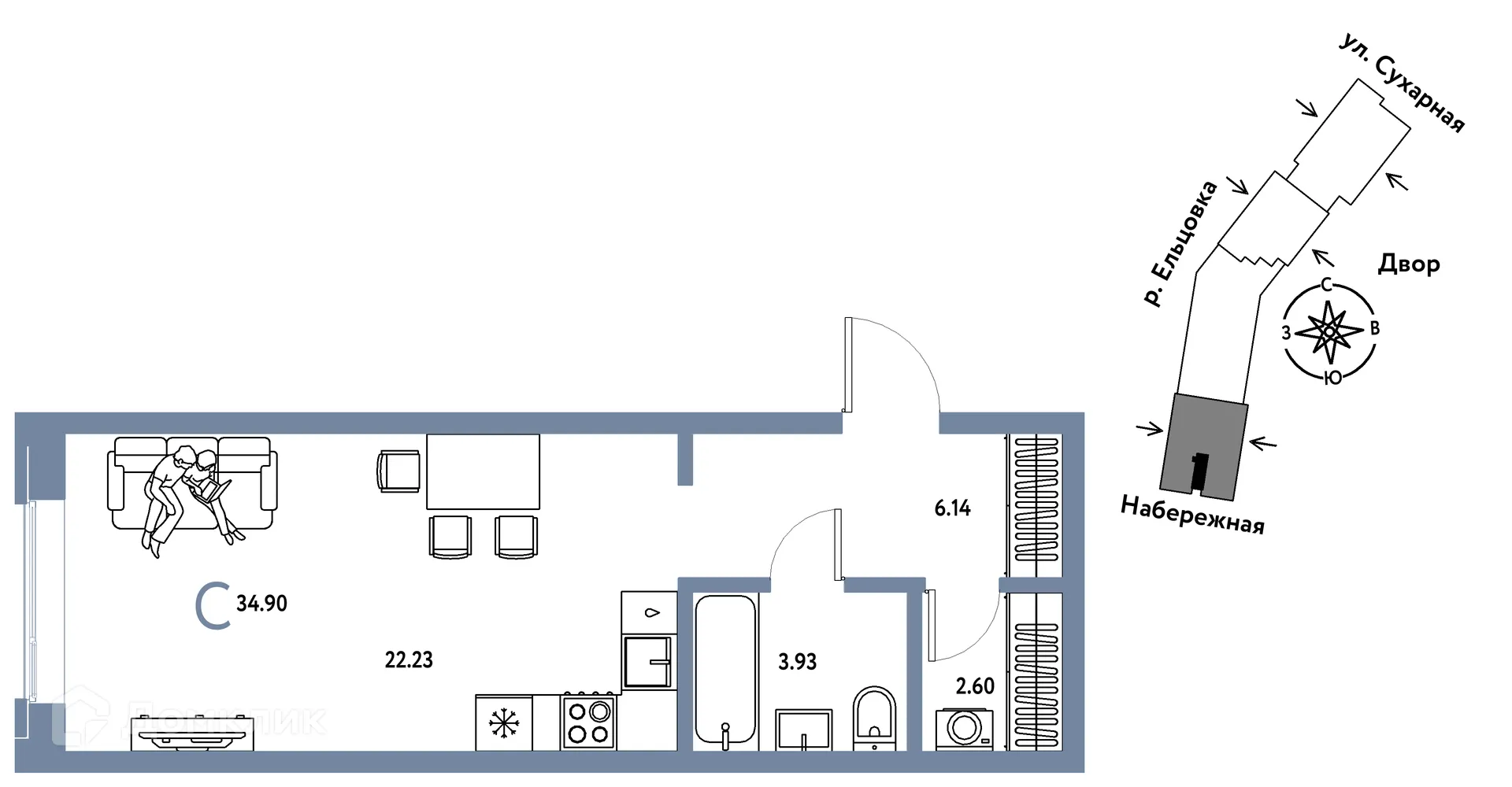
✅ Общая площадь: 34.9 м².
✅ Уютная жилая площадь: 16.59 м².
✅ Кухня: 5.64 м² — место для кулинарных шедевров.
Преимущества квартиры: ✨
🔧 Вариант отделки: предварительная отделка. Готовая база для вашего интерьера.
🌞 Большие окна наполняют помещения естественным светом.
🌿 Класс жилья: Комфорт — благоустроенная территория.
Финансы и ипотека: 💰
💳 Ипотека от 76 923 руб/мес.
🏦 Подходит под семейную и IT ипотеку.
🤝 Эскроу-счета гарантирует спокойствие.
Для бесплатного бронирования и проверить актуальную стоимость — позвоните нам прямо сейчас! 📞
Параметры новостройки в ЖК Страна.Береговая:
• Номер квартиры - 4
• Вариант отделки - предварительная отделка
• Площадь - 34.9 м²
• Жилая Жилая - 16.59 м²
• Площадь кухни - 5.64 м²
• Класс жилья - Комфорт
• Комнат - Студия
• Этаж - 2
• Дом - 29-этажный
Полезная информация о ЖК Страна.Береговая
«Страна.Береговая» — новый флагманский проект от Страны Девелопмент в Новосибирске. Новый дом на берегу Оби с выходом на набережную В проекте идеально воссоздана атмосфера безмятежности и спокойствия — три секции разной этажности с акцентной башней-доминантой образуют камерное пространство с закрытым двором и личным зелёным садом для отдыха. Внутри квартала расположена торговая галерея и игровые зоны для детей всех возрастов. А вид на реку позволит жителям круглогодично чувствовать себя в отпуске.
Страна.Береговая создана для удобной и безопасной жизни, а дома оснащены умными технологиями.
Одной из значимых особенностей проекта станет выход на благоустроенную набережную и смотровую площадку.
Срок сдачи: 4 кв. 2026 г.
Срок сдачи: 4 кв. 2026 г.
Площади квартир
Этажность
Класс жилья
Корпусов
Стены