Новосибирск, Большая, 582 стр
Площадь
Жилая
Кухня
Отделка
Класс жилья
Комнат
Номер кв.
Этаж
В продаже 3-комнатная квартира в современном жилом комплексе "ЖК САМОЦВЕТЫ" 🏢
Квартира расположена на 3-м этаже 18-этажного дома.
Прекрасный выбор для семьи.
Функциональная планировка: 📐
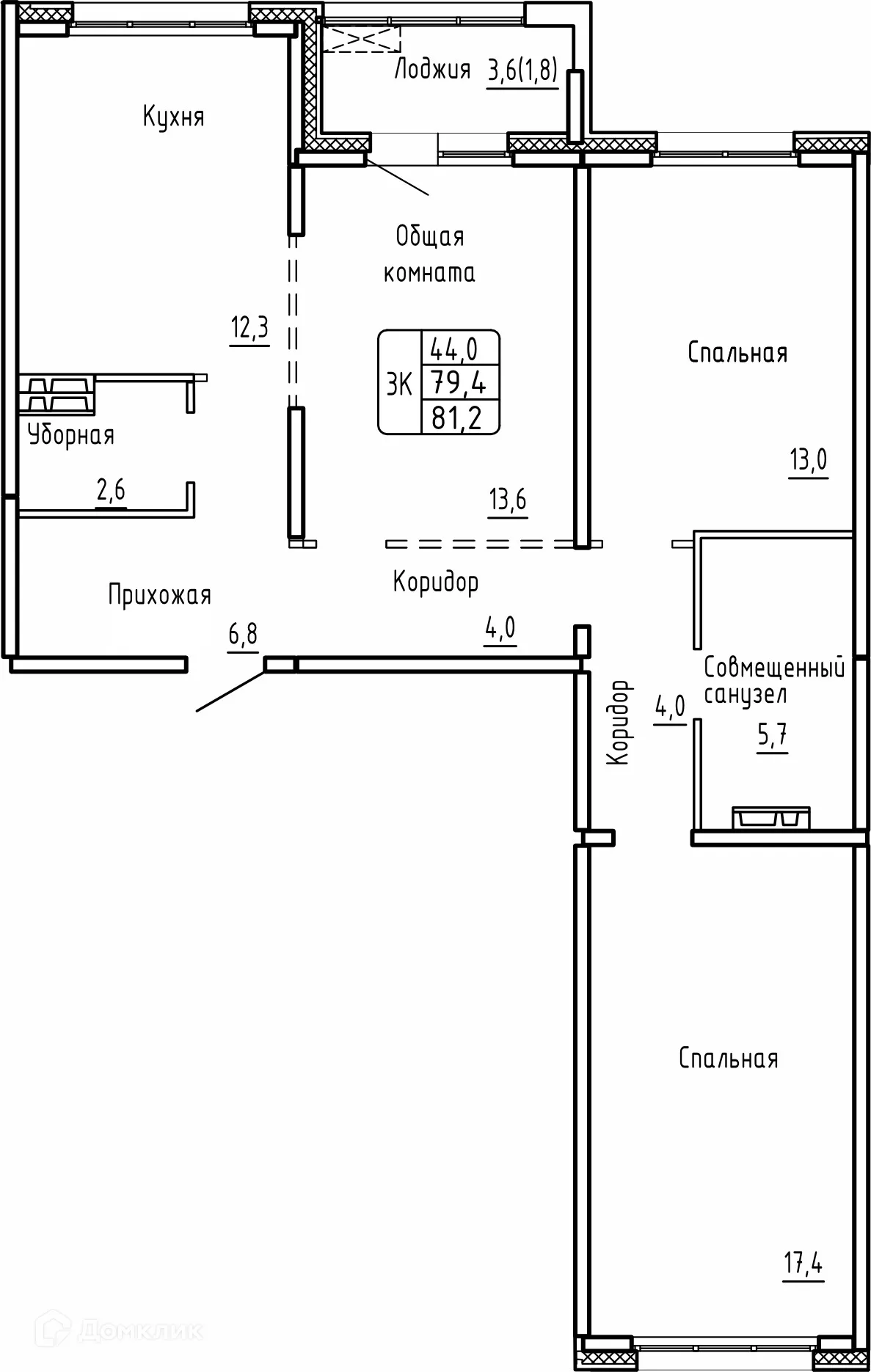
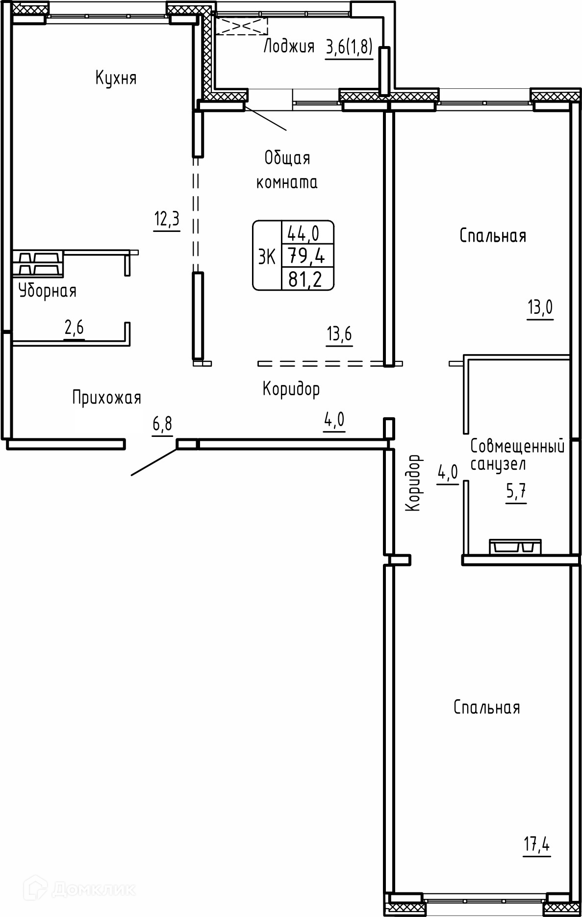
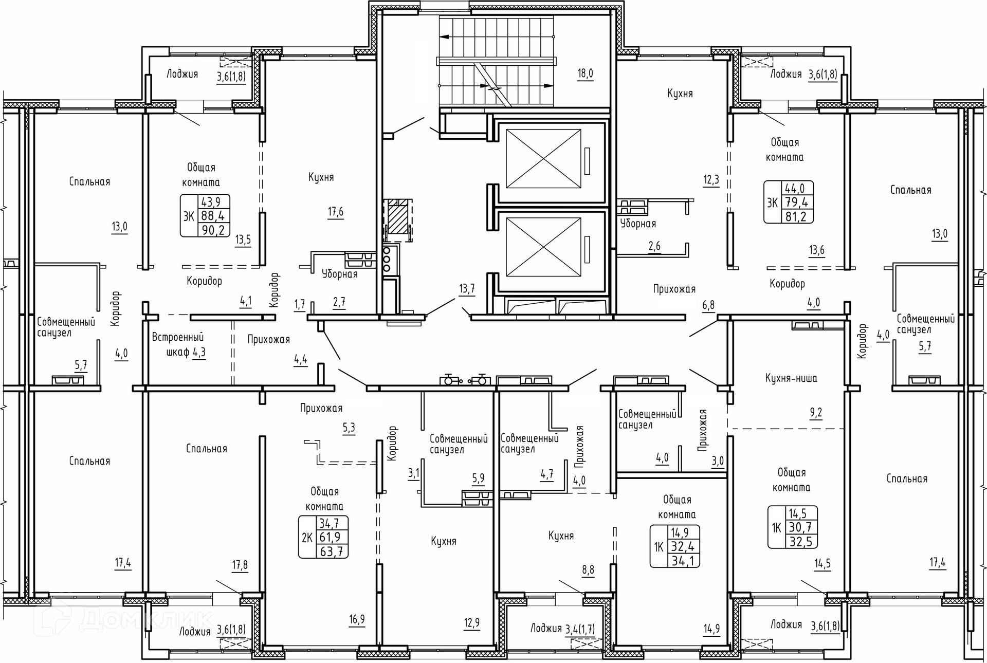
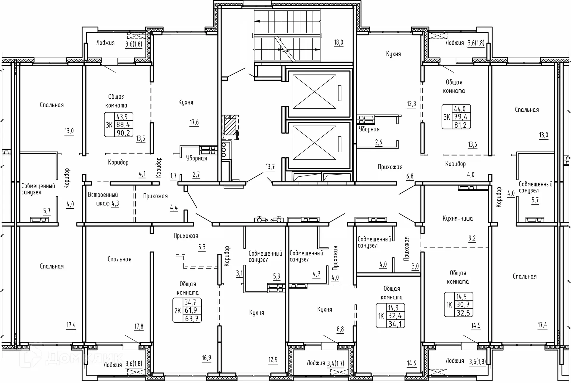
✅ Общая площадь: 81.2 м².
✅ Уютная жилая площадь: 44 м².
✅ Кухня: - м² — идеальна для семейных ужинов.
Особенности квартиры: ✨
🔧 Вариант отделки: без ремонта. Это позволит вам сразу приступить к ремонту.
🌞 Увеличенные оконные проемы наполняют помещения естественным светом.
🌿 Класс жилья: Комфорт — благоустроенная территория.
Финансы и ипотека: 💰
💳 Ипотека от 58 688 руб/мес.
🏦 Подходит под семейную и IT ипотеку.
🤝 Эскроу-счета гарантирует спокойствие.
Для бесплатного бронирования и зафиксировать цену — свяжитесь с нами прямо сейчас! 📞
Параметры новостройки в ЖК САМОЦВЕТЫ:
• Номер квартиры - 421
• Вариант отделки - без ремонта
• Площадь - 81.2 м²
• Жилая Жилая - 44 м²
• Площадь кухни - - м²
• Класс жилья - Комфорт
• Комнат - 3-комнатная квартира
• Этаж - 3
• Дом - 18-этажный
Полезная информация о ЖК САМОЦВЕТЫ
Жилой комплекс «Самоцветы» - это объединенная территория закрытых дворов на 11,2 Га. В проект входят 17 жилых домов, школа, детский сад, стоянки открытого типа и многоуровневый гаражный бокс.
Жилой комплекс «Самоцветы» — это уникальный подход планирования дворовой территории и концептуально - новое пространство. В ЖК «Самоцветы» запроектированы коммерческие помещения: под кафе, рестораны, супермаркеты, магазины и медицинские центры. Каждая очередь строительства ЖК «Самоцветы» имеет свое уникальное название в честь горных пород России.
Жилой комплекс «Самоцветы» расположен по улице «Большая», Ленинского района, города Новосибирска. Вблизи жилого комплекса расположены кафе, продуктовые и строительные магазины, аптеки, а также торговый центр в котором находятся – крупный продуктовый магазин, салоны красоты, сервисные центры и др. А в радиусе 2х км расположились тренажерные залы и большое обилие магазинов способных закрыть любые потребности.
Срок сдачи: 2 кв. 2026 г.
Срок сдачи: 2 кв. 2026 г.
Площади квартир
Этажность
Класс жилья
Корпусов
Стены