Новосибирск, улица Фабричная, 65/3
Площадь
Жилая
Кухня
Отделка
Класс жилья
Комнат
Номер кв.
Этаж
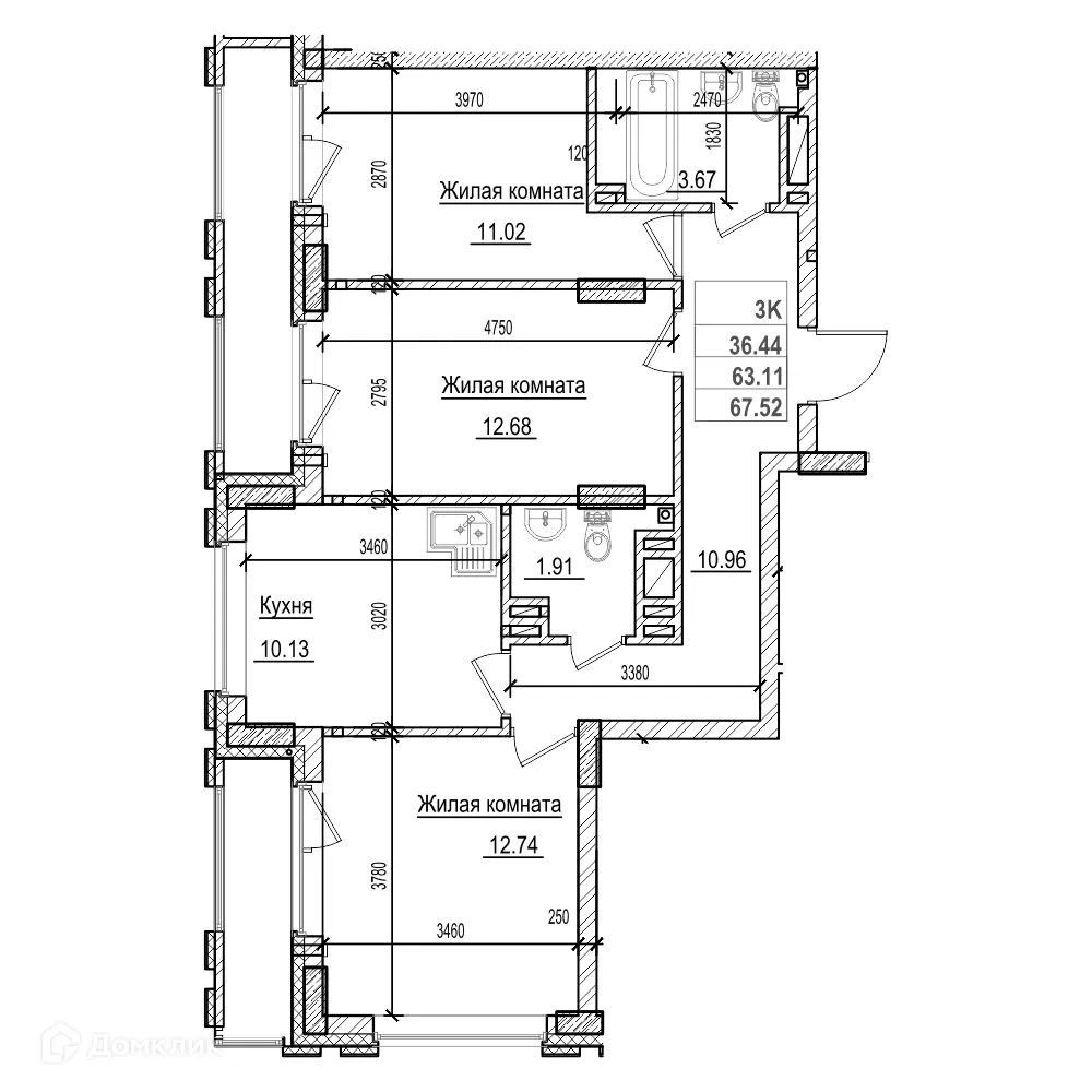
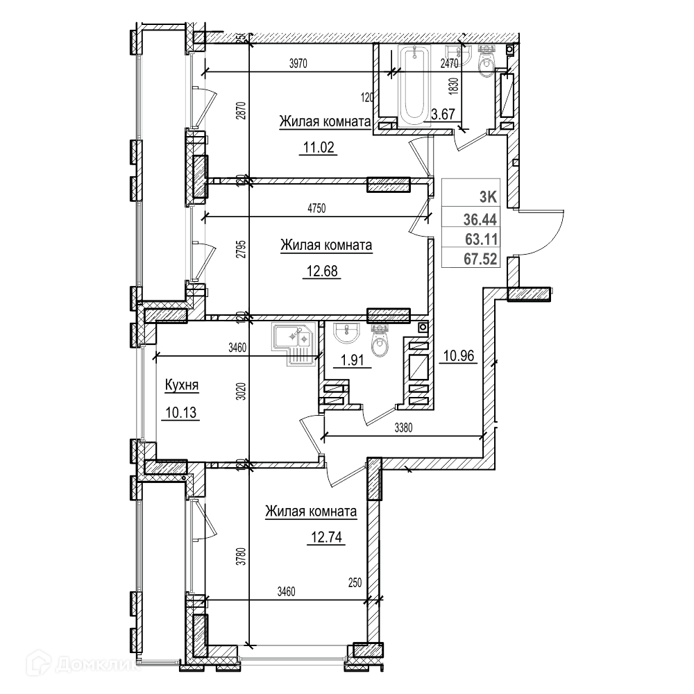
Доступна к покупке 3-комнатная квартира в современном жилом комплексе "ЖК Чернышевский" 🏢. Квартира расположена на 17-м этаже 31-этажного дома. Отличный вариант для инвестиций.
Чтобы забронировать эту квартиру бесплатно и зафиксировать цену — свяжитесь с нами прямо сейчас! 📞
Жилой комплекс у реки. • 100 метров до береговой линии. • Кирпичные стены. • Бесшумные скоростные лифты увеличенного размера. • Подземный паркинг. • Круглосуточная охрана и видеонаблюдение. • Большая придомовая территория без машин. • Просторные детские и спортивные площадки. • Рядом запланированный участок для строительства школы. • Доступность инфраструктуры тихого центра. Удобное расположение. • Планируемый пешеходный мост через ул. Фабричную. • 1,5 км до метро «Площадь Гарина-Михайловского». • 1,8 км до метро «Площадь Ленина». • Быстрый выезд на Фабричную и Димитровский мост. • Автобусная остановка рядом с комплексом.
Срок сдачи: 1 кв. 2021 г.
Срок сдачи: 1 кв. 2021 г.
Площади квартир
Тип жилья
Этажность
Класс жилья
Корпусов
Стены