Новосибирск, улица Фабричная, 65/3
Площадь
Жилая
Кухня
Отделка
Класс жилья
Комнат
Номер кв.
Этаж
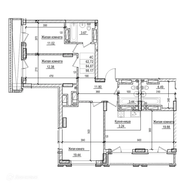
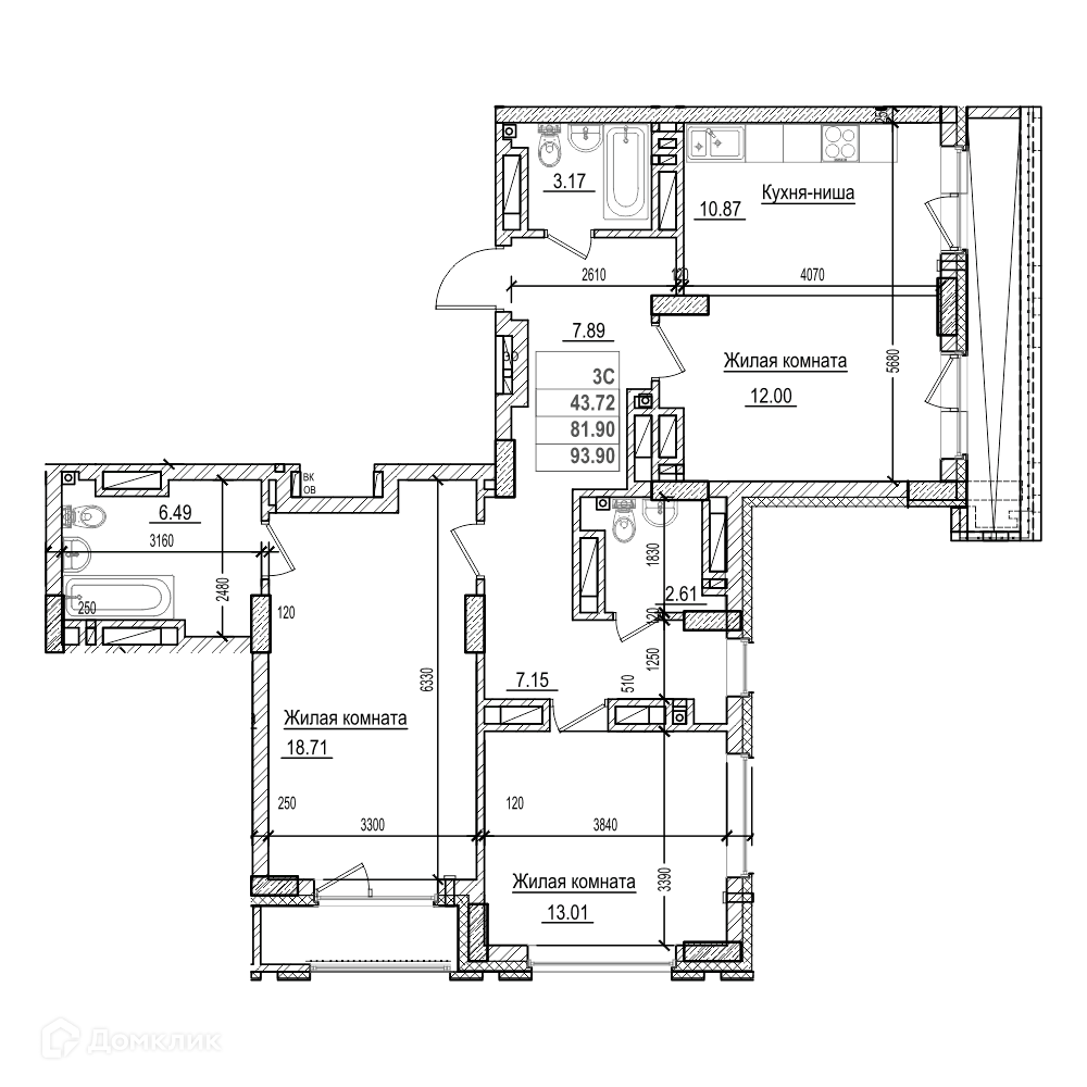
В продаже 2-комнатная квартира в новом жилом комплексе "ЖК Чернышевский" 🏢
Квартира расположена на 29-м этаже 31-этажного дома.
Прекрасный выбор для семьи.
Функциональная планировка: 📐
✅ Общая площадь: 81.9 м².
✅ Светлая жилая площадь: 43.7 м².
✅ Кухня: - м² — эргономичное пространство.
Преимущества квартиры: ✨
🔧 Вариант отделки: без ремонта. Это позволит вам сразу приступить к ремонту.
🌞 Большие окна наполняют помещения природным светом.
🌿 Класс жилья: Комфорт — благоустроенная территория.
Выгодные условия покупки: 💰
💳 Ипотека от 123 857 руб/мес.
🏦 Подходит под семейную и IT ипотеку.
🤝 Эскроу-счета гарантирует надежность.
Чтобы узнать подробности и зафиксировать цену — позвоните нам прямо сейчас! 📞
Параметры новостройки в ЖК Чернышевский:
• Номер квартиры - 273
• Вариант отделки - без ремонта
• Площадь - 81.9 м²
• Жилая Жилая - 43.7 м²
• Площадь кухни - - м²
• Класс жилья - Комфорт
• Комнат - 2-комнатная квартира
• Этаж - 29
• Дом - 31-этажный
Полезная информация о ЖК Чернышевский
Жилой комплекс у реки.
• 100 метров до береговой линии.
• Кирпичные стены.
• Бесшумные скоростные лифты увеличенного размера.
• Подземный паркинг.
• Круглосуточная охрана и видеонаблюдение.
• Большая придомовая территория без машин.
• Просторные детские и спортивные площадки.
• Рядом запланированный участок для строительства школы.
• Доступность инфраструктуры тихого центра.
Удобное расположение.
• Планируемый пешеходный мост через ул. Фабричную.
• 1,5 км до метро «Площадь Гарина-Михайловского».
• 1,8 км до метро «Площадь Ленина».
• Быстрый выезд на Фабричную и Димитровский мост.
• Автобусная остановка рядом с комплексом.
Срок сдачи: 1 кв. 2021 г.
Срок сдачи: 1 кв. 2021 г.
Площади квартир
Тип жилья
Этажность
Класс жилья
Корпусов
Стены