Новосибирск, Комсомольский проспект, 6
Площадь
Жилая
Кухня
Отделка
Класс жилья
Комнат
Номер кв.
Этаж
Доступна к покупке 2-комнатная квартира в востребованном жилом комплексе "ЖК Комсомольский проспект" 🏢
Квартира расположена на 7-м этаже 16-этажного дома.
Прекрасный выбор для семьи.
Продуманная планировка: 📐
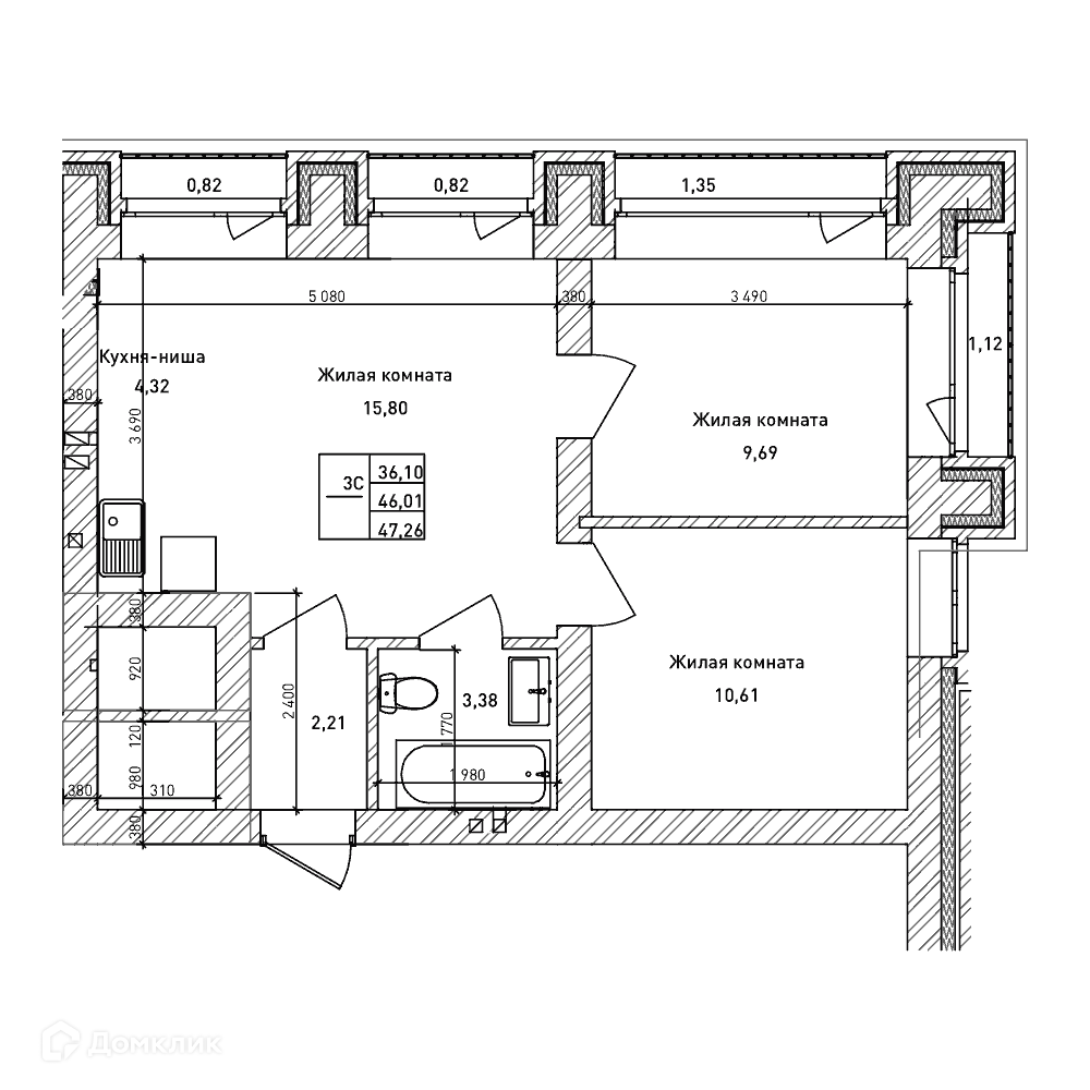
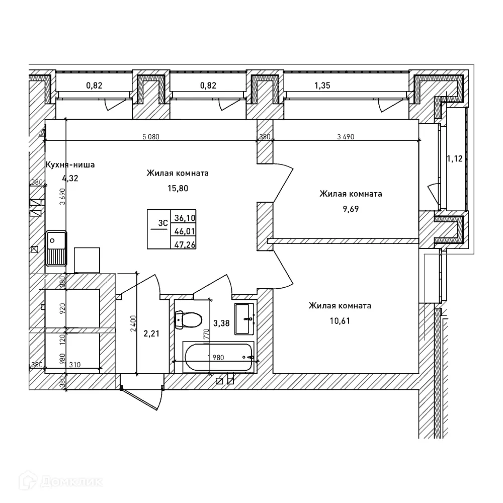
✅ Общая площадь: 46 м².
✅ Светлая жилая площадь: 36.1 м².
✅ Кухня: - м² — место для кулинарных шедевров.
Преимущества квартиры: ✨
🔧 Вариант отделки: без ремонта. Минимум грязных работ.
🌞 Увеличенные оконные проемы наполняют помещения естественным светом.
🌿 Класс жилья: Комфорт — благоустроенная территория.
Финансы и ипотека: 💰
💳 Ипотека от 68 409 руб/мес.
🏦 Доступны льготные программы господдержки.
🤝 Безопасная сделка гарантирует спокойствие.
Чтобы забронировать эту квартиру бесплатно и проверить актуальную стоимость — свяжитесь с нами прямо сейчас! 📞
Параметры новостройки в ЖК Комсомольский проспект:
• Номер квартиры - 71
• Вариант отделки - без ремонта
• Площадь - 46 м²
• Жилая Жилая - 36.1 м²
• Площадь кухни - - м²
• Класс жилья - Комфорт
• Комнат - 2-комнатная квартира
• Этаж - 7
• Дом - 16-этажный
Полезная информация о ЖК Комсомольский проспект
Жилой комплекс на пересечении ул. Дмитрия Шамшурина и Комсомольского проспекта из трех многоэтажный кирпичных домов. Первый этап строительства - жилой дом переменной этажности (11 и 14 этажей).
Срок сдачи: 4 кв. 2025 г.
Срок сдачи: 4 кв. 2025 г.
Площади квартир
Этажность
Класс жилья
Корпусов
Стены