Новосибирск, Западный м-н, улица Связистов, 1
Площадь
Жилая
Кухня
Отделка
Класс жилья
Комнат
Номер кв.
Этаж
Продается 2-комнатная квартира в новом жилом комплексе "ЖК Азимут" 🏢
Квартира расположена на 17-м этаже 18-этажного дома.
Прекрасный выбор для инвестиций.
Удобная планировка: 📐
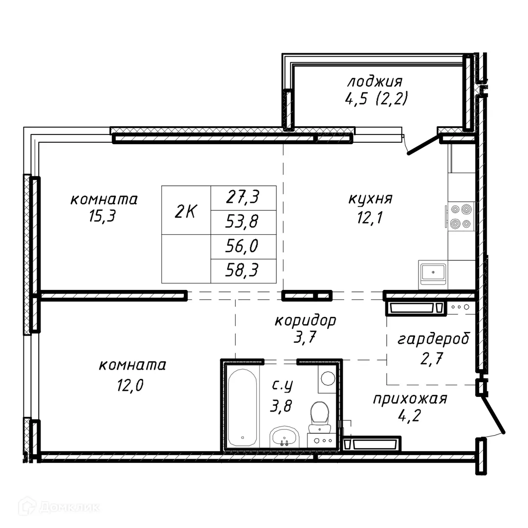
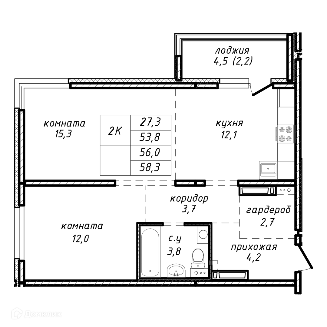
✅ Общая площадь: 56 м².
✅ Светлая жилая площадь: - м².
✅ Кухня: 12.1 м² — идеальна для семейных ужинов.
Особенности квартиры: ✨
🔧 Вариант отделки: без ремонта. Минимум грязных работ.
🌞 Увеличенные оконные проемы наполняют помещения естественным светом.
🌿 Класс жилья: Эконом — благоустроенная территория.
Финансы и ипотека: 💰
💳 Ипотека от 48 246 руб/мес.
🏦 Доступны льготные программы господдержки.
🤝 Покупка напрямую от застройщика гарантирует спокойствие.
Чтобы узнать подробности и зафиксировать цену — позвоните нам прямо сейчас! 📞
Параметры новостройки в ЖК Азимут:
• Номер квартиры - 163
• Вариант отделки - без ремонта
• Площадь - 56 м²
• Жилая Жилая - - м²
• Площадь кухни - 12.1 м²
• Класс жилья - Эконом
• Комнат - 2-комнатная квартира
• Этаж - 17
• Дом - 18-этажный
Полезная информация о ЖК Азимут
ВСЕ КОРПУСА СДАНЫ, в них еще есть квартиры которые подходят под гос. программы и можно сразу получить ключи!!!! Есть квартиры 37 кв.м. с ремонтом - 5 500 000, также подходят под все виды ипотек!!!
Уникальный жилой комплекс на левом берегу реки Оби в г. Новосибирске. Комплекс имеет развитую социальную и коммерческую инфраструктуру, в шаговой доступности от дома находятся школы, детские сады, поликлиники, торговые центры, фитнес -клубы, удобная сеть общественного транспорта. Отвечает самым современным требованиям к городской среде. Грамотно спроектирован с выделенными общественными пространствами. Удобен для жизни, отдыха и работы, позволяет максимально эффективно использовать свое время. Особое внимание уделено зонам отдыха для взрослых и юных жителей данного Жк.
ЖК Азимут состоит из 4-х блок-секций, материал стен панель, этажей в доме - 17. Заниженные подоконники, широкие холлы, свободная планировка - никого не оставят равнодушными.
Отделка: стяжка, шпаклевка стен, разводка электрики, радиаторы, счетчики на электричество и воду.
Вид договора: договор долевого участия, денежные средства перечисляются на эскроу -счет открытый в СберБанке. Ипотека в любом удобном для вас банке(Сбер, ВТБ, Открытие, Альфа-банк,Уралсиб) под льготную процентную ставку.
Доехать до центра Новосибирска и в любую точку города, жители ЖК «Азимут» смогут быстрее и проще.В Новосибирске готовятся к прокладке стратегической магистрали — Южного транзита.
Остатки квартир можно увидеть на нашем сайте. В комплексе работают 2 отдела продаж, один непосредственно на объекте, звоните и мы организуем для вас показ понравившейся вам квартиры.
Срок сдачи: 1 кв. 2024 г.
Срок сдачи: 1 кв. 2024 г.
Площади квартир
Этажность
Класс жилья
Корпусов
Стены